
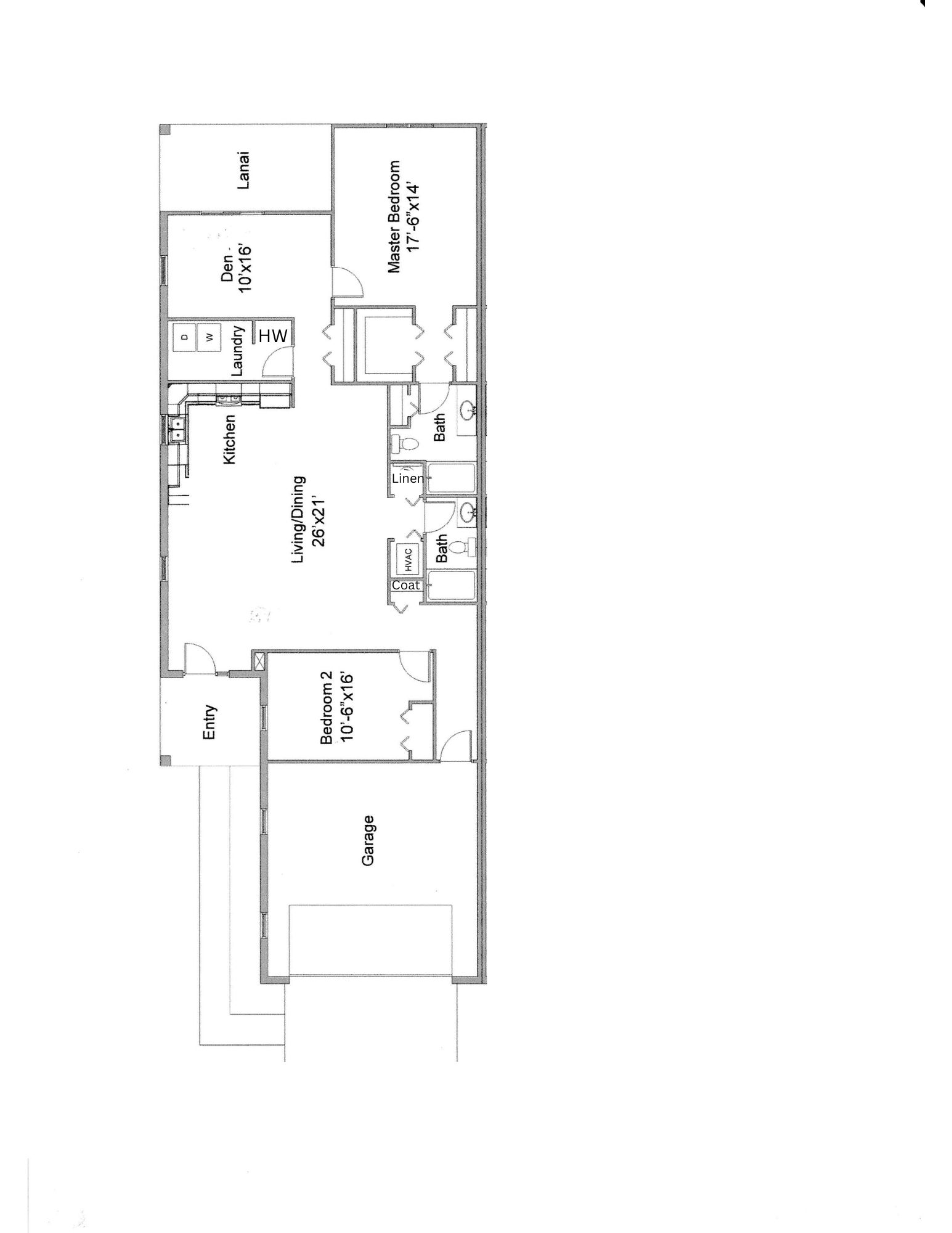
We are currently offering two floor plans (Stoneridge and Bradenton). Both come standard with 2 bedrooms, 2 full bathrooms, and a 2-stall garage. The Bradenton Unit allows for a bonus room (office or den) a spacious walk-in closet, and a laundry room. Please see floor plans below.
Bradenton Unit**

Stoneridge Unit**

**Please note: Standard Kitchen design is subject to change. For more information, please schedule an appointment or Contact Us for any questions.
Units are available in various phases of construction, giving you the ability to customize your finishes! Choose your cabinets, countertops, paint colors, and much more!

